Realizaciones
-París- Burdeos
-Marsella- Lille
-Lyon- Madrid
-Toulouse-Milán
-Lindo-,Düsseldorf
-Nantes- Londres
-Montpellier- Lisboa
-Estrasburgo
La serie de consultas y conferencias ya se ha propuesto a las Cámaras de Comercio e Industria (CCI), los departamentos de carreteras municipales y los servicios regionales de transporte de mercancías en 15 áreas metropolitanas europeas, 10 de las cuales se encuentran en Francia. Este programa se desarrollará desde noviembre de 2025 hasta junio de 2026.
2025 - Modelado económico puerta a puerta:
Integración de la cadena de transporte ascendente y descendente en las zonas residenciales urbanas (ZRU) según las últimas innovaciones del motor "Crit'Air 1" ofrecidas por los fabricantes. Identificación de factores para compensar los costes adicionales relacionados con la innovación y las superficies adicionales de las ZRU mediante nuevos servicios de alto valor añadido.
2024 - Abastecimiento y desarrollo de equipos logísticos:
Identificación de los equipos existentes y desarrollo de componentes innovadores que permitan la explotación de espacios logísticos subterráneos en los centros urbanos.
2023 - Proyecto piloto para el cambio modal en el reparto urbano por carretera-río-carretera
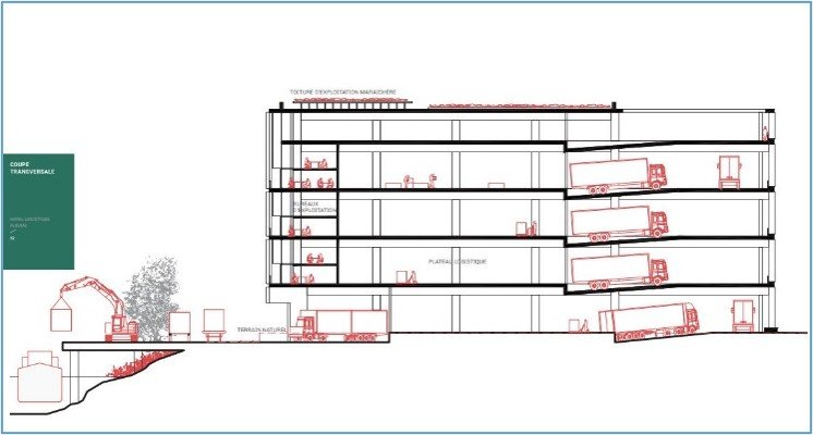
2021 - Estudio "Corredor Urbano" - Baytree / Axa - Syvil - Ludefi con un proyecto para un almacén multimodal fluvial-ferroviario-carretero 100% eléctrico y conectado para el puerto de Gennevilliers. 40.000 m² de espacio logístico de varias plantas accesible para camiones de 26 toneladas.
Socios: Nexeya - Liebherr - Arenzi - ETPO - Valdelia - Ziegler - Urby - ZES Pack - Cipal - Pytheas - IXBlue - Coldinnov
Puerto: Gennevilliers

2020 - Valdelia - Cemex Granulat - Green Switch Meridian experimenta con una plataforma prototipo que permite la transformación de un remolque contenedor de 20' para transportar 2 carrocerías intercambiables de 20 m3 y una viga de elevación mecánica automática hecha a medida.
Socios: Vaugon - Liebherr - Puertos de París - Transport Lena - Suez - VNF (financiación del proyecto piloto) - Región de las FDI (financiación de la plataforma y la viga de elevación)
Puertos: Muelle de uso compartido París Tolbiac y Muelle Gennevilliers de Suez Dique 5.


